Haridwar Residences

Haridwar Residences represents contemporary high-rise living that balances urban density with human-scaled design elements. The architectural approach emphasizes vertical landscaping, natural materials, and varied facade treatments to create a landmark residential building that enhances the Prabhat Road streetscape.

READ MORE

Haridwar Residences

Facade Design:

The building features a sophisticated composition of materials including warm timber cladding, glass curtain walls, and concrete elements. The alternating rhythm of solid and void, combined with extensive balcony gardens, creates visual depth and breaks down the monolithic scale of the high-rise structure.

Nestled in the heart of the city, Prabhat Road combines the charm of a tranquil residential area with close proximity to Pune's bustling commercial center & cultural landmarks. This area truly represents the essence of sophisticated living in Pane, making it an ideal choice for a new real estate development that practices luxury, comfort and a holistic lifestyle.

Haridwar Residences

Key Architectural Elements:

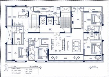
  • Multi-material facade combining timber, glass, and concrete
  • Extensive balcony system providing outdoor space for every unit
  • Vertical landscaping integrated throughout the building height
  • Varied unit types accommodating different family configurations
  • Climate-responsive design elements including shading and natural ventilation
  • Ground-level landscape buffer creating privacy and urban green space

Architectural Design

Residential Building

Location: Pune
Year: Ongoing
Design Team: Rushi Baheti, Chinmay Shah

Get in touch

Read more about our Create & Construct service, or contact us to discuss your project